• 3 Dormitorios
  • 4 Baños
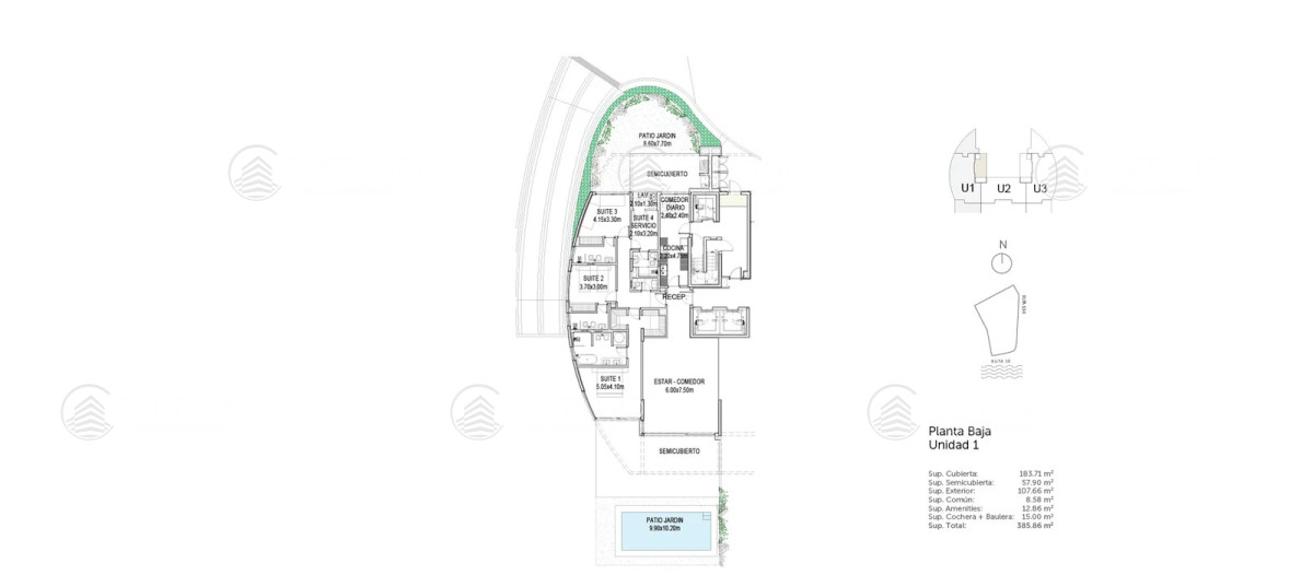
  • Sup. Total 386 m2

Descripción

Venta departamento de 3 dormitorios - Manantiales
Una idea con historia y nombre. El Estudio Mario Roberto Álvarez & Asociados generó el proyecto cuya arquitectura de carácter exhibe una muestra de la más calificada estética contemporánea.



De perfil innovador, el conjunto de residencias se destaca por su atrevimiento y su elegancia.



ALDEANA significa estilo, diseño y calidad para disfrutar sobre el mar, entre el bosque y la arena.



16.000 m2 de tierra

Todas las Residencias con vista al mar

Amplias terrazas con parrilla



Esta unidad cuenta con amplio living comedor, salida a terraza con vista al mar toilette. Tres dormitorios en suite, cocina independiente, comedor diario y terraza con parrillero, lavadero y dependencia de servicio completa.



No dude en consultar.

Características

  • Piscina: Interior / Exterior
  • Suites: 4
  • Living: No
  • Comedor: No
  • LivingComedor: Si
  • Baño Social: Si
  • Dep Servicio: Si
  • Baño Servicio: Si
  • Cocina: Definida
  • Frente Al Mar: Si
  • Distancia al Mar: 30mts
  • Superficie Propia: 184m2

Ubicación

logo

¿Desea Publicar su Propiedad?